Wohnbereiche Bitterfelder Straße 1

Ruhig gelegen wohnen


Wohnung für eine Person

Aufteilung:
Wohnen/Essen
Loggia mit Zugang vom Wohn/Essbereich
Schlafnische
Küche ohne Küchenzeile
Duschbad mit WC
Diele mit Einbauschrank

Wohnfläche:
ca. 44 qm

Weitere Informationen:
Es besteht die Möglichkeit der Aufstellung einer Waschmaschine im eigenen Bad, der Gemeinschaftstrockner im Keller steht allen Mietern zur Verfügung. 
Diese Wohnung verfügt über eine barrierefreie Dusche und ist für die Benutzung mit Rollstühlen geeignet.

Miete, Nebenkosten und Kaution
Der Großteil der Wohnungen wurde sozialgebunden gefördert. Daher ist für diese Wohnungen ein Wohnberechtigungsschein (WBS) erforderlich. 
Mit WBS     6,20 €/qm
Ohne WBS auf Anfrage


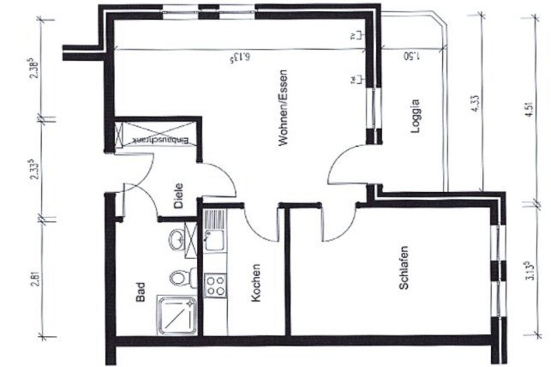
Wohnung für zwei Personen

Aufteilung:
Wohnen/Essen
Loggia mit Zugang vom Wohn/Essbereich
Schlafen
Küche ohne Küchenzeile
Duschbad mit WC
Diele mit Einbauschrank

Wohnfläche:
ca. 55 qm

Weitere Informationen:
Es besteht die Möglichkeit der Aufstellung einer Waschmaschine im eigenen Bad, der Gemeinschaftstrockner im Keller steht allen Mietern zur Verfügung. 
Diese Wohnung verfügt über eine barrierefreie Dusche und ist für die Benutzung mit Rollstühlen geeignet.

Miete, Nebenkosten und Kaution
Der Großteil der Wohnungen wurde sozialgebunden gefördert. Daher ist für diese Wohnungen ein Wohnberechtigungsschein (WBS) erforderlich. 
Mit WBS     6,20 €/qm
Ohne WBS auf Anfrage