Wohnbereiche Merseburger Straße 2

Seniorenwohnungen in Brühl Vochem


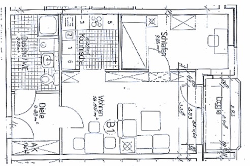
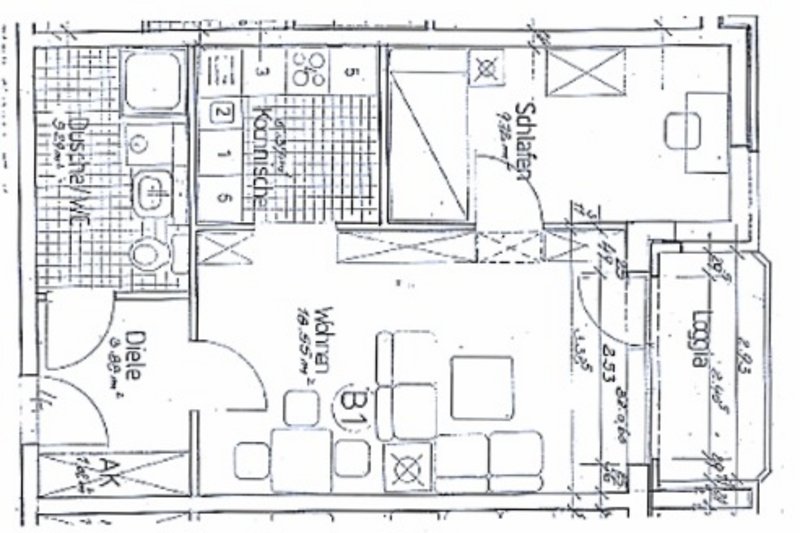
Wohnung für eine Person

Aufteilung:
Wohnen
Loggia mit Zugang vom Wohnen
Schlafzimmer
Kochnische ohne Küchenzeile
Duschbad mit WC
Diele mit Einbauschrank

Wohnfläche:
ca. 48 qm

Weitere Informationen:
Es besteht die Möglichkeit der Aufstellung einer Waschmaschine im eigenen Bad. Ebenso können Waschmaschinen und Trockner im Gemeinschaftskeller von allen Mietern genutzt werden.

Miete, Nebenkosten und Kaution
Der Großteil der Wohnungen wurde sozialgebunden gefördert. Daher ist für diese Wohnungen ein Wohnberechtigungsschein (WBS) erforderlich. 
Mit WBS     5,27 €/qm
Ohne WBS auf Anfrage


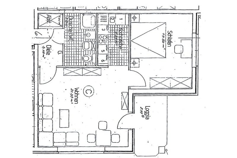
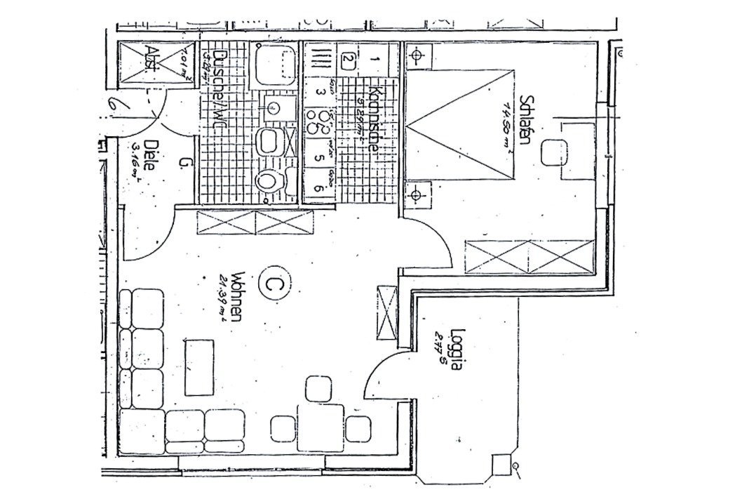
Wohnung für zwei Personen

Aufteilung:
Wohnen
Loggia mit Zugang vom Wohnen
Schlafzimmer
Kochnische ohne Küchenzeile
Duschbad mit WC
Diele mit Einbauschrank

Wohnfläche:
ca. 52 qm

Weitere Informationen:
Es besteht die Möglichkeit der Aufstellung einer Waschmaschine im eigenen Bad. Ebenso können Waschmaschinen und Trockner im Gemeinschaftskeller von allen Mietern genutzt werden.

Miete, Nebenkosten und Kaution
Der Großteil der Wohnungen wurde sozialgebunden gefördert. Daher ist für diese Wohnungen ein Wohnberechtigungsschein (WBS) erforderlich. 
Mit WBS     5,27 €/qm
Ohne WBS auf Anfrage