Wohnbereiche Leipziger Straße 1

Unsere Wohnungen für Senioren in Brühl


Wohnung für eine Person

Aufteilung:
Wohn- / ggf. Essbereich
Loggia mit Zugang vom Wohn/Essbereich
Schlafzimmer
Kochnische offen zum Wohnraum
Duschbad mit WC
Diele mit Einbauschrank

Wohnfläche:
ca. 46 qm

Weitere Informationen:
Die Aufstellung einer Waschmaschine im eigenen Bad ist nicht möglich. Im Gemeinschaftskeller stehen jedoch Waschmaschine und Trockner allen Mietern zur Verfügung.

Miete, Nebenkosten und Kaution
Der Großteil der Wohnungen wurde sozialgebunden gefördert. Daher ist für diese Wohnungen ein Wohnberechtigungsschein (WBS) erforderlich. 
Mit WBS     6,32 €/qm
Ohne WBS auf Anfrage


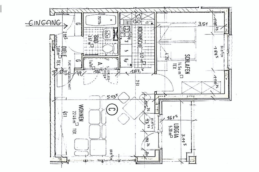
Wohnung für zwei Personen

Aufteilung:
Wohnen mit Essbereich
Loggia mit Zugang vom Wohn-/Essbereich
geräumiges Schlafzimmer 
Kochnische, offen zum Wohn-/Essbereich
Wannenbad mit WC
Diele mit Einbauschrank

Wohnfläche:
ca. 58 qm

Weitere Informationen:
Die Aufstellung einer Waschmaschine im eigenen Bad ist nicht möglich. Im Gemeinschaftskeller stehen jedoch Waschmaschine und Trockner allen Mietern zur Verfügung.

Miete, Nebenkosten und Kaution
Der Großteil der Wohnungen wurde sozialgebunden gefördert. Daher ist für diese Wohnungen ein Wohnberechtigungsschein (WBS) erforderlich. 
Mit WBS     6,32 €/qm
Ohne WBS auf Anfrage